15/46 Ocean Street, Mermaid Beach
$830pw
Last Listed: 17/11/25
FREE utility connection available with this property!
When it’s time to move, look out for the Move Me In invitation, and compare some of the best electricity plans, internet, removalists, gas plans, and more!
Compare dealsRecommended Properties
BREAK LEASE - Oceans Mermaid Beach
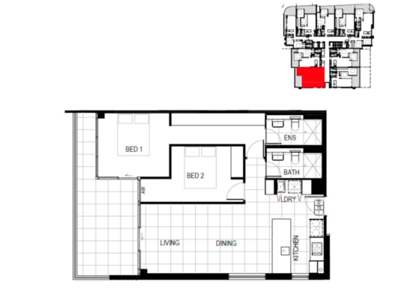
Exclusively located in the heart of sought after Mermaid beach this collection of 2 and 3 bedroom apartments offers the best of beach and urban living. Park your car securely and stroll to the huge selection of cafes, restaurants, bars and patrolled beach at your doorstep. Live the holiday lifestyle every day, wake up and love where you live at Oceans Mermaid Beach. Resort style amenities offered by Oceans Mermaid Beach on level 2 include a well appointed BBQ and dining area, pool deck complete with outdoor furniture offering sun and shade. Residents also have access to a cardio Gym. Located on level 3, this west facing apartment is beautifully appointed, key features include: - Open plan living that extends onto oversized balconies, perfect for entertaining. - Tiled Kitchen, living and dining areas with carpeted bedrooms - Floor to ceiling glass offering spectacular panoramic views of the Gold Coast Hinterland & Coastline - Fully ducted, dual zone air-conditioning - High end Franke appliances Oven, Cooktop, Microwave and Dishwasher - Parisi Tapware and ceramics in Kitchens and Bathrooms. - Dryer included - Built in wardrobes in all bedrooms with the master bed robes offering expansive space. - NBN connection ready direct to apartments - Free to air and Pay TV ready - Secure basement car parking (1) - Secure Residential building with fob key access and intercom - Unfurnished PLEASE NOTE: This is a break lease, rent will be increasing to $860 per week from 22/04/2026. **Images provided a general images of colour scheme in relation to this apartment. Please refer to floor plan for further information. **Register your interest now to be notified of inspection times. **Please register for inspection time otherwise we will not be able to advise you of any updates for the property.